Informationen zum Objekt Nr. 66.01
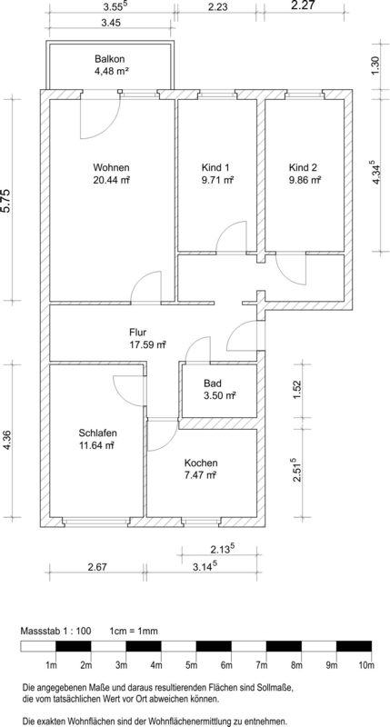
Geräumige 4-Raum-Wohnung in familienfreundlichem Umfeld
- Wohnfläche ca.
- 81 m2
- Zimmeranzahl
- 4
- Etage
- EG
- Kaltmiete
- 430,00 €
- Nebenkosten
- 100,00 €
- Heizkosten
- 100,00 €
- Gesamtmiete
- 630,00 €
- Frei ab
- Mai 2026
- Energieausweis
- vorhanden
- Kennwert
- 81 KWh
- Adresse
- Lobensteiner Str. 19
07549 Gera - Stadtteil
- Lusan
So wohnen Sie:
- Sonniges Wohnzimmer mit Balkon
- Küche mit Fenster
- gefliestes Bad mit Dusche und Waschmaschinenanschluss
- sehr schöne & moderne EBK vom Vormmieter zu übernehmen (Preis VB)
- Hausreinigungsservice
- objektbezogener Hauswart
- ausreichend Parkmöglichkeiten vor dem Haus









